ひとつの住まいが再び息を吹き返すまで。
その背景には、人の想いの『物語り』と、モノづくりへの想いの『モノ語り』があります。
今回は、マンション買取 ~ 設計 ~ リノベーション ~ 再販 まで一連してマルナカグループで実施。
私たちのその軌跡をコラムでご紹介します。
今回は、女性設計士による、リノベーション設計編です。
【VOL.2】リノベーション設計編
リノベーション部門 設計担当:田中
■設計のはじまり―
現地を訪れたとき、まず目に留まったのは、窓の向こうに広がる緑と空のきれいな景色でした。「この気持ちよさを、暮らしの中に取り込みたい」そんな想いから、設計をしました。
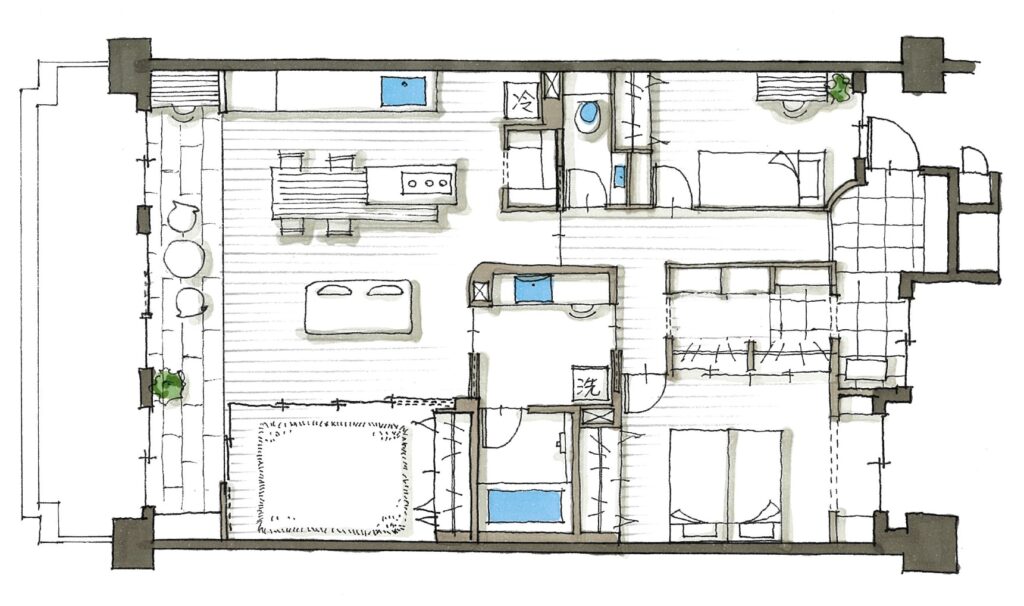
3つのプランを考えましたが、どれも共通していたのは“窓を活かすこと”でした。また、間取りの制約がある中ですが、真ん中に納戸を置き、導線を回遊式にして、空気の流れと暮らしやすさを両立させるよう工夫しました。

■譲れなかったこだわり―
開口いっぱいの窓とつながる広々としたリビングをつくりたくて、最初は2LDKで設計していました。
ですが、社内打合せで、2LDKか3LDKかで意見が割れ、最終的に3LDKになり、
最初のイメージからの大幅変更で、もう一部屋つくるのには大変苦労しました。
それでもどうしても譲れなかったのが、“間口いっぱいのインナーバルコニー”でした。室内と外をゆるやかにつなぎ、窓を活かした季節の空気を感じながら過ごせる場所にしたい——
そこは、最初に現地を見た時から感じていたことで、最後までこだわったポイントです。

■ 私の家づくりのルーツ―
設計のヒントは、日常のあちこちにあると思っています。雑誌やSNS、旅先の宿泊施設など、
「おもしろい」と感じるものを見つけるのが好きです。宿泊先も、あえて個性的なところを選ぶことが多いですね。
実は、若いころは、家やインテリアにそれほど興味がなかったんです。でも、職場の後輩がインテリアコーディネーターを目指していたことをきっかけに、自分も本屋さんで雑誌を手に取るようになりました。気づけば、家族に「もう処分したら?」と言われるほど、雑誌の山ができていました(笑)。
50代になった今、思うのは——「もっと自由で、もっと遊びのある空間をつくりたい」ということ。例えば今回のリフォームでどうしても取り入れたかった“華ブロック”。もともと外構で使われる素材ですが、商業施設で内装に使われているのを見て、“いつか住宅でも使ってみたい”と思っていました。
こういった「おもしろい」を設計に取り入れていくことは、住まいづくりの“醍醐味”であり、
自分自身が一番楽しめる瞬間でもあります。

“ 住まいは、つくって終わりではなく、暮らしと一緒に育っていくもの ”
完璧に作りこむのではなく、あえて“余白”を残しておくこと。設計のプロとして、こだわりを持ちながらも、これから住むご家族の物語を大切にしながら“自分たちらしい時間”を過ごしてほしい―。今回のリノベーションにはそんな想いが込められています。
―これから紡がれる住まいと家族の『物語』―
―こだわりと遊び心を込めた『モノ語り』―
